Descrizione
Situato a pochi chilometri dal borgo medievale di Montepulciano, questo grande casale offre varie opportunità per creare qualcosa di speciale. Attualmente la disposizione è molto flessibile e la casa può essere utilizzata come una casa unifamiliare o come due appartamenti separati. Essendo così vicino a Montepulciano sarebbe ideale come investimento abitativo con attività di affitti brevi.
Area:
Montepulciano non ha bisogno di presentazioni con le storiche vie che portano alla Cattedrale in Piazza Grande, situata al centro del fiorente centro storico pieno di attrattive e vari negozi, naturalmente concentrata sui produttori in primis il Vino Nobile di Montepulciano. Il paese è circondato da una bella e aperta campagna a poca distanza da Pienza e Val d’Orcia. Rimane facilmente raggiungibile dall’autostrada A1.
Terreno:
Incluso nella vendita vi é circa mezzo ettaro di terreno che circonda la proprietà la quale include un uliveto oltre al giardino adiacente la casa ed piazzale d’ingresso.
Annessi:
Garage e locale tecnico
Zona barbecue con forno a legna tradizionale
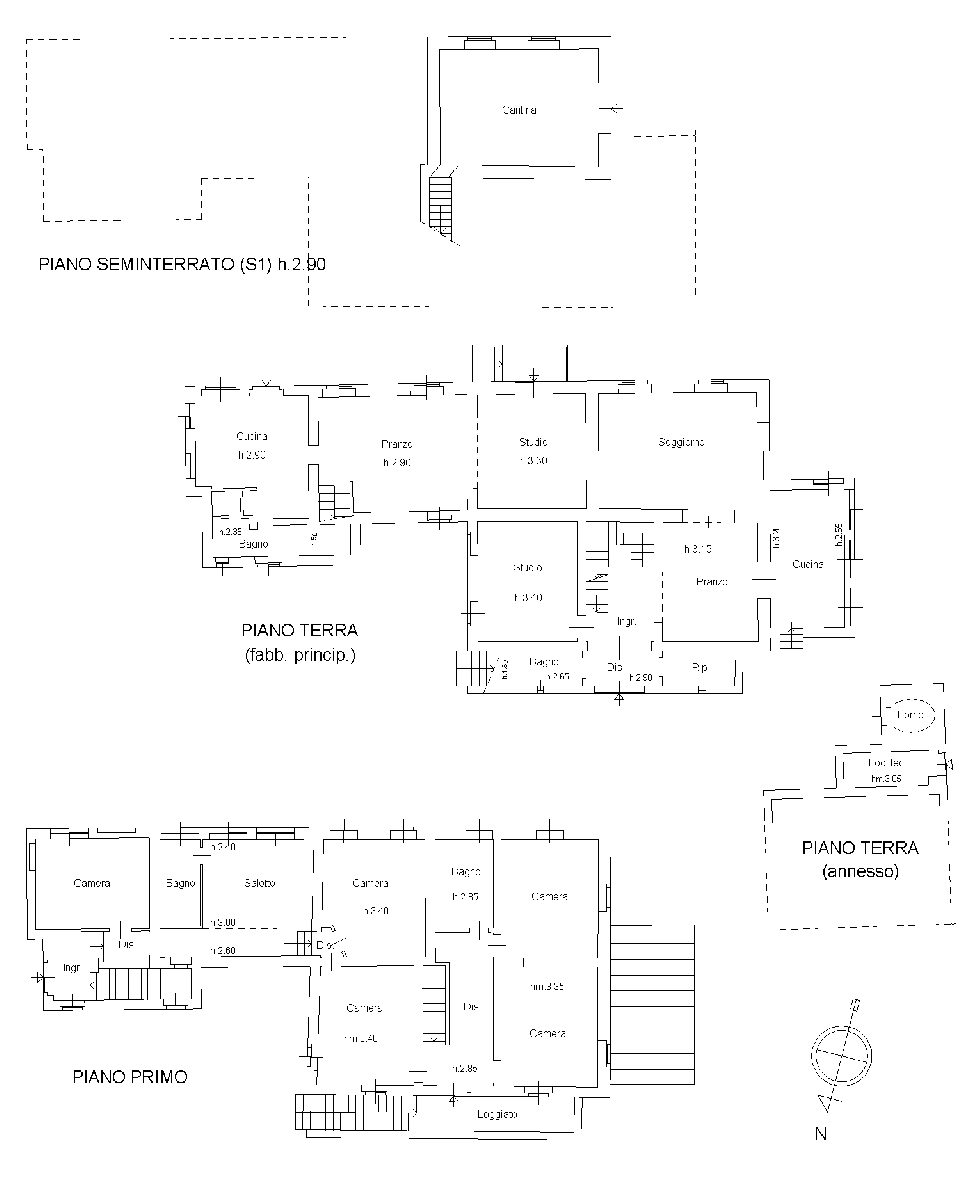
Sistemazione:
Ingresso dal piazzale al Primo piano:
Disimpegno con scala discendente verso Cucina 2 e primo piano:
Camera 1 con pavimento in legno, travi a vista e due finestre verso uliveto
Bagno 1 con doccia Grande e doppio lavabo
Salone 1 con pavimento in legno e due grandi finestre ad arco verso sud.
Disimpegno verso
Camere da letto 2 pavimento in cotto con 2 finestre esposte a sud
Camera da letto 3 pavimento in legno finestra su cortile
Grande disimpegno con ulteriore ingresso da loggiato esterno
Bagno 2 completamente piastrellato con doppio lavabo e vasca grande
Camera da letto 4 con pavimento in legno 2 finestre comunicante con
Camera da letto 5 con pavimento in legno, camino e ampia finestra
Da disimpegno ingresso scale discendenti interne verso
Piano Terra:
Salone con Grande Camino originale, e disimpegno con ingresso principale
grande arcata che delimita area Sala da pranzo e Soggiorno
Cucina ben attrezzata con finestre su due lati
Bagno di servizio
Sgabuzzino
Studio/Libreria che porta a
Grande salone composto da Studio e Soggiorno con camino e uscita sul giardino
Sala da pranzo
Cucina 2 con pavimento in legno e uscita verso pergolato con griglia e zona pranzo esterna
Bagno 3 con doccia
Piano Inferiore:
Accesso sia esterno che da ingresso principale con lavanderia e sistema riscaldamento automatizzato a pellet.



































